
|
型號 |
額定工作電壓(KV) |
最高工作電壓(KV) |
額定工作電流(A) |
動穩定電流(峰值)(KA) |
2S熱穩定電流(KA) |
|
GN19-10/400-12.5 |
10 |
11.5 |
400 |
31.5 |
12.5 |
|
GN19-10/630-20 |
10 |
11.5 |
630 |
50 |
20 |
|
GN19-10/1000-31.5 |
10 |
11.5 |
1000 |
80 |
31.5 |
|
GN19-10/1250-40 |
10 |
11.5 |
1250 |
100 |
40 |
|
GN19-10C/400-12.5 |
10 |
11.5 |
400 |
31.5 |
12.5 |
|
GN19-10C/630-20 |
10 |
11.5 |
630 |
50 |
20 |
|
GN19-10C/1000-31.5 |
10 |
11.5 |
1000 |
80 |
31.5 |
|
GN19-10C/1250-40 |
10 |
11.5 |
1250 |
100 |
40 |
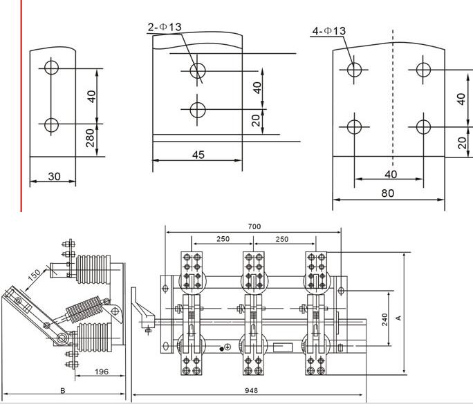
五、結構和工作原理
GN19-10/400A、GN19-10/630A、GN19-10/1000A、GN19-10/1250A戶內高壓隔離開關的每相導電部分通過兩個支柱絕緣子固定在底座上。(GN19-10C/400A、GN19-10C/630A、GN19-10C/1000A、GN19-10C/1250A型則為一個為支柱絕緣子,一個為瓷套管絕緣子)三相平行安裝,導電部分由觸刀、靜觸頭、觸座(或導電桿)組成。每相觸刀中間均連有拉桿絕緣子,拉桿絕緣子與安裝在底座上的主軸相連。主軸通過手柄與連桿和CS6-1型手力機構相連在一起連動。